Exkluzivní prodej novostavby rodinného domu na Klínech v Krušných horách
Exkluzivní prodej novostavby rodinného domu na Klínech v Krušných horách
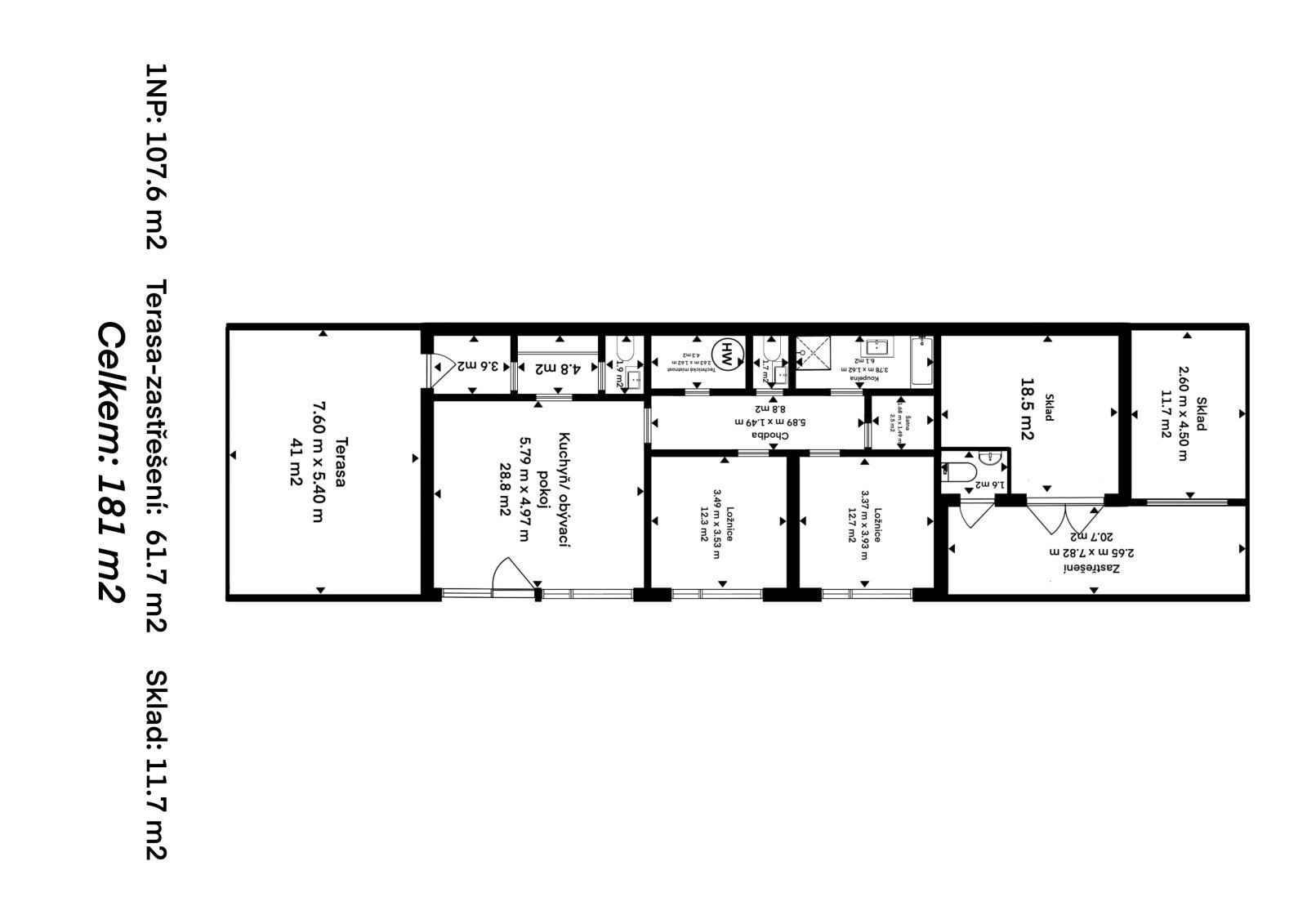
Exkluzivně vám nabízíme k prodeji novostavbu rodinného domu
o velikosti 3+kk v atraktivní horské lokalitě Klíny, nedaleko
lyžařského areálu a krásné přírody Krušných hor.
Dominantou domu je světlý obývací pokoj propojený s jídelnou a kuchyní.
Kuchyňská linka v barvě světlého béžového dřeva je vybavena
vestavnými spotřebiči – myčkou Miele, vestavnou lednicí s mrazákem,
troubou a sklokeramickou varnou deskou. V domě je plovoucí podlaha v dekoru
divokého dubu, zrcadlové vestavné skříně jsou v ložnicích
i v zádveří.
Koupelna nabízí vanu i sprchový kout. Součástí vnitřního vybavení domu
jsou dvě toalety i šatna. V technické místnosti je umístěn prádelní
kout s pračkou a sušičkou zn. Miele.
Na zahradě je prostor pro aktivní odpočinek – hřiště pro míčové hry
nebo tenis, posezení u ohniště, kde se dá na dálkové ovládání spustit
střecha pergoly, je zde i venkovní sportovní náčiní na cvičení a
dřevěná loď, jako dětské útočiště. Dále jsou ze zahrady přístupné
(navazující na dům) dva sklady a toaleta.
Technické informace: vytápění domu a ohřev vody je řešen elektrokotlem
zn. Proterm + na střeše jsou instalovány solární panely o výkonu
6,5 kW. Kanalizace je řešena jímkou o objemu cca 15 m3. Dům je postaven
z panelů s 20 cm zateplením. Voda je z obecního vodovodu. Spotřeba
energií se pohybuje v rozmezí 2 500 až 4 000 korun měsíčně.
Tento moderní dům byl použit pouze párkrát pro návštěvy, takže je
v novém, nepoužitém, perfektním stavu.
Majitel dům prodává včetně veškerého zařízení a spotřebičů. Noví
majitelé si mohou tedy ihned užít veškeré pohodlí, které dům
nabízí.
Vzhledem k velice žádané lokalitě a krásnému prostředí tuto nemovitost
vřele doporučuji…
Případné financování hypotečním úvěrem ráda zprosředkuji.
Holubí vrch 147





















